Nếu bạn đã từng đọc truyện Doraemon, và trầm trổ trước thiết bị...tự trồng lúa để làm bánh gạo của chú mèo máy đáng yêu, giúp Nobita hiểu hơn về quy trình trồng trọt gian khổ của người nông dân, để làm ra những món ăn ngon nhất từ lúa gạo, thì nay những "mảng lúa" ấy đã xuất hiện ngoài đời thực, ngay tại văn phòng công ty gồm 9 tầng do Kono Designs ở Tokyo, Nhật Bản thiết kế và thực hiện.

dezeen_pasona-urban-farm_32.jpg
Tòa nhà nổi bật bởi những mảng xanh ở khắp các ô cửa, ban công

dezeen_pasona-urban-farm_9.jpg
Từ bên ngoài, các cây hoa đã khiến mọi người vô cùng bất ngờ

Ngay từ khi bạn nhìn thấy tòa nhà của công ty phía bên ngoài, bạn đã thấy sự nổi bật của nó so với những tòa nhà xung quanh. Bao quanh tòa nhà cao tầng là những mảng cây cối xanh tươi từ phía cửa sổ, ban công của các tầng lầu, trông như một bức tranh chấm phá vô cùng đáng yêu.

Nhưng điều bất ngờ nhất đến từ bên trong tòa nhà tưởng chừng như giống với hàng ngàn văn phòng khác ở khắp mọi nơi trên thế giới. Các mảng cây xanh, rau, củ, quả...được trồng trực tiếp ngay trong các văn phòng, được chăm sóc và tạo điều kiện sống như ngoài tự nhiên.

dezeen_pasona-urban-farm_5.jpg

04-urban-farm.jpg
Bên trong văn phòng lại là một thế giới bất ngờ hơn, với các khu vực canh
tác, trộng trọt hoa màu xanh mướt


Tòa nhà có tổng diện tích là 20.000m vuông, và được trích ra 4.000m vuông để trồng trọt.

Việc trồng rau củ quả trong tòa nhà đã bắt đầu từ năm 2010, người đứng đầu công ty Yoshino Kono chính là người khởi xướng ra dự án này.

"Nhân viên trong công ty có thể được nhìn thấy, chung tay chăm sóc những khu vườn này, điều này giúp họ dễ dàng kết nối với nhau và tạo mối quan hệ mật thiết với tự nhiên, điều vốn dĩ đang rất thiếu thốn đối với những người làm việc trong văn phòng tại các thành phố lớn".

18-urban-farm-1.jpg

dezeen_pasona-urban-farm_6.jpg
Nhân viên làm việc trong những mảng xanh được tạo ra từ các loại rau củ quả


Tất cả số lương thực, thực phẩm thu được tại các khu vườn nhỏ sẽ được phục vụ cho bữa ăn tại công ty. Mọi người được khuyến khích cùng nhau chăm sóc nó.

Có rất nhiều loại lương thực, thực phẩm được trồng theo các hình thức khác nhau tại đây. Bạn có thể thấy những "ruộng lúa", giàn cây dây leo, khu vườn kính trồng dâu tây... Mọi thứ đều được xây dựng và tạo điều kiện như khi trồng bên ngoài.

dezeen_pasona-urban-farm_15.jpg

dezeen_pasona-urban-farm_17.jpg

dezeen_pasona-urban-farm_24.jpg
Tự tay trồng lúa, hoa quả, tự tay chăm sóc chúng và nhìn chúng lớn lên, ra hoa
kết quả, mỗi ngày đi làm đểu hồi hộp mong chờ "thành quả", còn gì tuyệt vời hơn thế?

dezeen_pasona-urban-farm_30.jpg
Tự tay trồng lúa

07-urban-farm1.jpg
Nhìn nó lớn lên mỗi ngày

08-urban-farm.jpg
Chăm sóc nó...

dezeen_pasona-urban-farm_7.jpg

dezeen_pasona-urban-farm_26.jpg
Và thu hoạch như một nông dân chính hiệu

dezeen_pasona-urban-farm_13.jpg

dezeen_pasona-urban-farm_23.jpg

dezeen_pasona-urban-farm_31.jpg

dezeen_pasona-urban-farm_34.jpg
Cây trồng được trồng ở khắp nơi, được thiết kế sao cho thân thiện nhất với không gian làm việc

dezeen_pasona-urban-farm_16.jpg

dezeen_pasona-urban-farm_20.jpg
Rất nhiều loại cây được trồng trong tòa nhà

dezeen_pasona-urban-farm_25.jpg

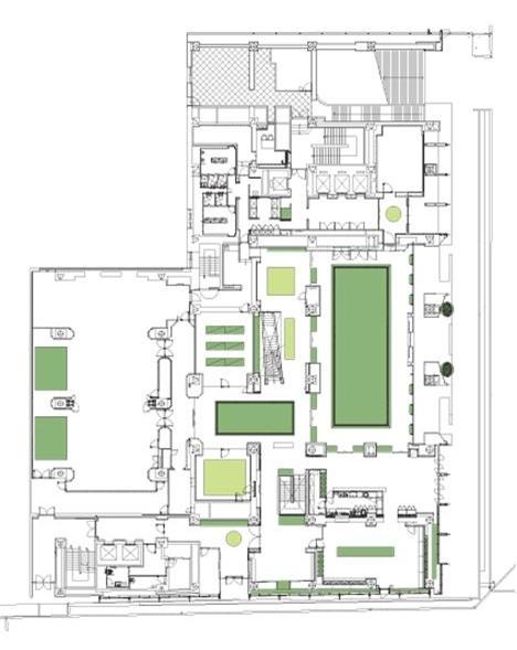
dezeen_Pasona_urban-farm_drawing_3.jpg
Mặt cắt một bản thiết kế của văn phòng độc đáo này

Theo Yeah1